Integrative Wohnanlage
für betreutes Pflegewohnen
der Werk-Hilfe e.V. Calden, Hegerweg 16, 16 A - F

Bild zurück Bild wird geladen... Bild vor
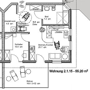
Einzelappartement gem. DIN 18025-1
(Wohnung für Rollstuhlbenutzer)